Печь-камин Мюнхен гигант графит
Печь-камин Мюнхен Гигант графит
Камин «Мюнхен» один из самых удобных и экономичных вариантов отопления жилых помещений. Компактные размеры не влияют на мощность устройства, оно хорошо обогревает на протяжении 3-5 часов комнату объемом до 240 м3. Несомненным плюсом считается вместительная топка – в нее легко помещаются дрова длиной до 50 см.
Огнеупорное стекло, а точнее, стеклокерамика легко выдерживает температуру до 750°C. За счет встроенного термостойкого шнура и особой конструкции дверцы полностью герметичны. Теплую и уютную атмосферу в доме можно легко создать, купив камин. Камины «Мюнхен» - продуманный до мелочей теплогенератор, отличающийся четкими линиями и одним из самых высоких КПД.
Основные преимущества печи-камина Мюнхен
- 01 Комфортность
Атмосфера, которая царит в комнате с работающей печью очаровывает. Изменчивые огненные пейзажи за остекленной дверцей, театр теней на стенах, дразнящие воображение запахи и звуки - печь камин по волшебству преображает привычные домашние декорации, добавляя загадочности и уюта.
- 02 Удобство
Полностью готов к установке, так как облицовка входит в комплект
- 03 Технологичность
Топка из жаропрочных стальных листов толщиной в 6 мм, облицованная изнутри шамотными плитами
- 04 эффективность
Два режима горения топлива. При выборе экономичного режима топка на одной закладке дров может не затухать до 10 часов
- 05Практичность
Особое устройство конвективных каналов, обеспечивающее КПД до 78-80 %
- 06 дизайн
Через стекла печи-камина удобно присматривать за огнем, да и просто любоваться затейливыми играми пламени
- 07 долговечность
Через несколько лет интенсивного использования шамотный кирпич внутри топки можно заменить, не придется покупать новую печь.
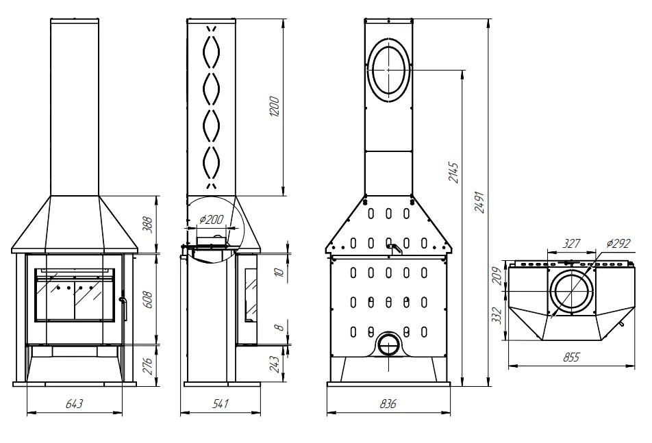
Характеристики печи-камина Мюнхен
|
Габариты (Г х Ш х В)
|
541 х 855 х 2491 |
|
Глубина топочной камеры, мм |
500 |
|
Диаметр дымохода, мм |
200 |
|
Масса печи, кг |
145 |
|
Объем отапливаемого помещения,м3 |
105-240 |
|
Площадь обогрева, м2 |
42-96 |
|
Вид топлива |
Дрова |
|
Гарантийный срок, мес |
24 |
|
Материал топки |
Сталь |
|
Футеровка |
Вермикулит |
|
Мощность, кВт |
12 |
|
Варочная плита |
Нет |
|
Система "Чистое стекло" |
Да |
Схема устройства и установки

Рисунок 1. Габаритные размеры


Рисунок 2. Схемы расположения печи-камина возле стен из горючего материала


Рисунок 3. Схемы расположения печи-камина возле стен из негорючего материала

Рисунок 4. Схема противопожарной защиты элементов
Способы оплаты
- Оплата по выставленному счету на расчётный счет компании (ИП без НДС)
- Онлайн - оплата картой на сайте компании
- Оплата наличными при получении (только в Новосибирске)
- Оплата картой по эквайринговому терминалу при получении (только в Новосибирске)
- Оплата переводом с карты на карту
- Оплата на расчетный счет компании — ИП без НДС
- Оплата на расчетный счет компании — ИП с НДС
- Доставка по г. Новосибирск осуществляется БЕСПЛАТНО при заказе от 5000 руб.*
- Доставка в другие города
- Доставка до транспортной компании