Твердотопливный котел Сибирь Промо 500 кВт
Твердотопливный котел Сибирь Промо 500 кВт
Промышленный отопительный твердотопливный котел "Сибирь Т" - 500 кВт, является начальным в линейке промышленных котлов "Сибирь". Он предназначен для отопления больших домов, зданий промышленного и бытового назначения, оборудованных системой отопления с принудительной циркуляцией, площадью от2500 до 5000 м2. Его теплопроизводительность находится в пределах от250 до 500 кВт, а КПД - 85%.
Теплонагруженные части корпуса промышленного котла "Сибирь Т" - 500 кВт выполнены из котловой стали толщиной 5 мм (согласно ГОСТ 5520-79), что является гарантией его высокой надежности и долговечности в использовании.
Промышленный отопительный твердотопливный котел "Сибирь Т" - 500 кВт оборудован жаротрубным теплообменником, закрытый снаружи водяной рубашкой. Теплообменник представляет собой многоступенчатую конструкцию дымовых каналов. Горячие газы после зоны дожига проходят через стальной жаротрубный теплообменник, где, отдав тепло, охлаждаются. Охлажденные газы выходят из котла через дымоход, соединенный с дымовым патрубком. Расположение дверей теплообменника, засыпной, камеры сгорания и зольника позволяет получить быстрый доступ к топке для очистки и розжига. Широкая засыпная дверца облегчает загрузку топлива.
Воздух, необходимый для правильного процесса сжигания, подается вентилятором благодаря системе наддувных втулок, расположенных непосредственно в области загруженного топлива. Микропроцессорный регулятор постоянно измеряет температуру воды в котле и соответственно устанавливает силу наддува вентилятора, регулируя количество воздуха, необходимого для процесса сжигания.
Обращаем Ваше внимание на то, что установку печи согласно техническому паспорту, имеют право производить только лицензированные организации, специализирующиеся на проектировании, монтаже и установке отопительного оборудования. Будьте внимательны и основательно подходите к выбору подрядчиков, для монтажа отопления в вашем здании.

Основные преимущества Котла длительного горения
- 01 Высокий КПД
(по результатам проведенных испытаний данный котел позволяет экономить до 30% твердого топлива)
- 02 Возможность
функционирования в автоматическом режиме: данный котел оборудован вентилятором наддува и микропроцессорным регулятором, которые позволяют контролировать мощность котла
- 03 Уникальность конструкции:
она позволяет использовать любой вид твердого топлива (уголь, древесину). Также в котле используется регулируемая система распределения подачи воздуха в зоны активного горения и дожига, что позволяет максимально эффективно управлять процессом сгорания топлива в камере при различной мощности котла
- 04Топка котла
представляет собой засыпную камеру, имеющую развитую поверхность теплообмена со всех стенок, потолка, части дна, оборудованную водотрубным теплообменником, что позволяет сделать процесс горения максимально эффективным
- 05 Длительное время
горения топлива: при выходе на рабочую мощность котла, длительность его бесперебойной работы составляет от 3 до 16 часов
- 06 Соотношение приемлемой цены
с высокими показателями качества: по сравнению с импортными аналогами данный котел значительно ниже по цене, а благодаря использованию современных производственных технологий и автоматизации процессов, качество выпускаемых котлов постоянно улучшается.
- 07 Постоянное складское наличие,
высокая скорость отгрузки покупателям и короткий срок изготовления.
Характеристики Котла длительного горения
|
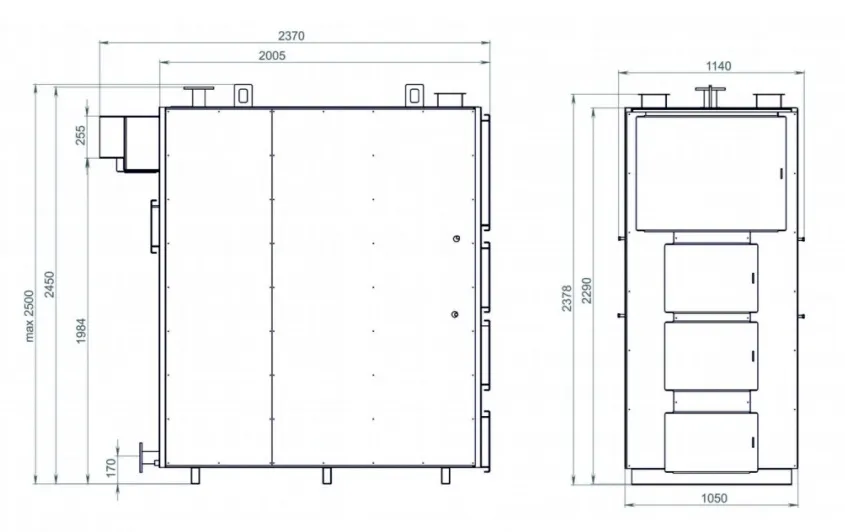
Габариты (Г х Ш х В)
|
2370 х 1150 х 2500 |
|
Отапливаемая площадь, м2 |
2500-5000 |
|
Объем водяного контура, л |
1025 |
|
Масса котла, кг |
Нетто - 2590 |
|
КПД, % |
85 |
|
Выход дымохода |
Сзади |
|
Высота оси фланца подачи, мм |
2413 |
|
Гарантийный срок, мес |
36 |
|
Высота оси фланца обратки, мм |
160 |
|
Номинальная t воды на входе в котел, °С |
50 |
|
Объем загрузочной камеры, л |
1180 |
|
Мощность,кВт |
500 |
|
Диаметр дымохода, мм |
300 |
|
Рабочее давление в котле, бар |
2,5 |
|
Греющие поверхности котла, м2 |
26 |
|
Максимальная t воды на выходе, °С |
90 |
Схема устройства и установки Котла длительного горения

Рисунок 1. Устройство Котла

Рисунок 2. Габаритные размеры

Рисунок 3. Схема установки
Комплект поставки
|
Котел длительного горения |
1 шт |
|
Чугунный колосник
|
1 ком. |
|
Микропроцессорный регулятор |
1 шт |
|
Вентилятор |
2 шт |
|
Ершик |
1 шт |
|
Инструкция по монтажу и эксплуатации |
1 шт |
>
Способы оплаты
- Оплата по выставленному счету на расчётный счет компании (ИП без НДС)
- Онлайн - оплата картой на сайте компании
- Оплата наличными при получении (только в Новосибирске)
- Оплата картой по эквайринговому терминалу при получении (только в Новосибирске)
- Оплата переводом с карты на карту
- Оплата на расчетный счет компании — ИП без НДС
- Оплата на расчетный счет компании — ИП с НДС
- Доставка по г. Новосибирск осуществляется БЕСПЛАТНО при заказе от 5000 руб.*
- Доставка в другие города
- Доставка до транспортной компании