Твердотопливный котел Ратник 16 кВт
Твердотопливный котел Ратник 16 кВт
Котлы на твердом топливе Ратник используются для водяного отопления помещений от 120 до 160 м2: домов, коттеджей, подсобных и хозяйственных помещений.Принцип действия котла основан на передаче тепловой энергии, высвобождаемой при сжигании топлива, теплоносителю - воде. Горение топлива происходит в топке внутри корпуса.
Теплонагруженные части корпуса котла выполнены из конструкционной стали толщиной 3 мм ГОСТ 16523-89. Корпус котла покрыт термостойкой эмалью, выдерживающей температуру до 800°С.
Теплообменники встроенные в корпус котла, максимально увеличивают КПД котла, сохраняя при этом его небольшие габариты.
Дополнительный теплосъем дает водонаполненный колосник, расположенный в камере сгорания котла.
Котлы Ратник предназначены для зданий, оборудованных системой отопления с естественной или принудительной циркуляцией. Отопительный котел может работать как в открытой, так и в закрытой отопительной системе и предназначен для длительного сжигания твердого топлива: неспекающихся видов каменного, бурого угля, пеллетов и дров.
Водогрейные твердотопливные котлы «ХОГАР» предназначены для отопления индивидуальных жилых домов и зданий коммунально-бытового назначения, оборудованных системами водяного отопления с естественной или принудительной циркуляцией, в открытых и закрытых системах отопления. Твердотопливные котлы для водяного отопления дома способны поддерживать требуемый уровень температуры в любое время года даже в просторном помещении.
Этот экономичный выбор в пользу автономного теплоснабжения позволит вам создать продуманную и функциональную систему отопления загородного дома, коттеджа, хозяйственного или подсобного помещения. Котел работает на твердом топливе, угле и дровах. В котле предусмотрена возможность установки нагревательного элемента с пультом управления и регулятора тяги (в комплект не входят).
Основные преимущества твердотопливного котла
- 01 Универсальность
Верхняя стальная плита позволяет готовить пищу, а также нагревать воду на аппарате отопительно-варочном
- 02 Надежность
Водяная рубашка расположена по всему контуру, включая нижнюю стенку котла
- 03 Удобство и простота в эксплуатации
Зольная камера с вместительным зольным ящиком удобна при чистке аппарата отопительного, а также увеличивает пожаробезопасность
- 04 Технологичность
Длина топки котла рассчитана для работы котла на дровах
- 05 Инновационность
Возможна установка в котел блок-ТЭНа, предназначенного для поддержания положительной температуры теплоносителя после сгорания твёрдого топлива
- 06эффективность
Передняя топочная дверца с термостойким уплотнителем удобна для розжига дров, дозагрузки топлива и чистки котла
- 07Практичность
Стандартную чугунную колосниковую решетку, расположенную в камере сгорания котла, легко чистить, и можно заменить в любой удобный момент
Характеристики твердотопливного котла Ратник:
|
Номинальная мощность, кВт |
16 |
|
Отапливаемая площадь (при высоте потолка до 2.7м), не более, м² |
160 |
|
КПД, % |
75 |
|
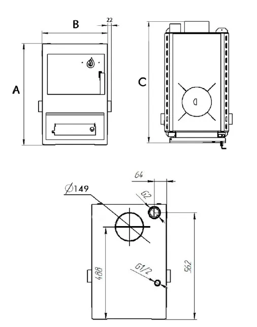
Габаритные размеры (Ш х Г х В), мм |
438 х 881 х 610 |
|
Масса, кг |
105 |
|
Температура теплоносителя на выходе из котла, °С |
60-90 |
|
Теплоноситель |
Вода |
|
Объем топки, л |
38 |
|
Объем водяной рубашки, л |
32 |
|
Максимальная длина полена, мм |
х |
|
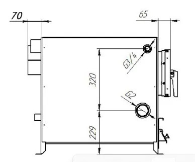
Диаметр дымохода, мм |
150 |
|
Рекомендуемая высота дымохода, м |
5 |
|
Мощность блока ТЭНов, кВт |
3х2=6 |
|
Рабочее давление в системе, МПа (кгс/кв.см) |
2,5 |
|
Гарантия, лет |
1 |
Схемы управления и устройство
Рисунок 1. Устройство котла. Базовая комплектация


Рисунок 2. Габаритные размеры


Рисунок 3. Схема установки котла.

Рисунок 4. Варианты установки дымовой трубы

Рисунок 5. Схема закрытой системы отопления

Рисунок 6. Схема открытой системы отопления

Комплект поставки:
Базовая комплектация
|
Котел отопительный Хогар |
1 шт. |
|
Термометр |
1 шт. |
|
Колосник |
1 шт. |
|
Ящик зольника |
1 шт. |
| Руководство по эксплуатации | 1 шт. |
| Плита стальная с конфоркой | 1 шт. |
Способы оплаты
- Оплата по выставленному счету на расчётный счет компании (ИП без НДС)
- Онлайн - оплата картой на сайте компании
- Оплата наличными при получении (только в Новосибирске)
- Оплата картой по эквайринговому терминалу при получении (только в Новосибирске)
- Оплата переводом с карты на карту
- Оплата на расчетный счет компании — ИП без НДС
- Оплата на расчетный счет компании — ИП с НДС
- Доставка по г. Новосибирск осуществляется БЕСПЛАТНО при заказе от 5000 руб.*
- Доставка в другие города
- Доставка до транспортной компании
