Автоматический пеллетный котел ZOTA Pellet Black 45 кВт
Автоматический пеллетный котел ZOTA Pellet Black 45 кВт
Котел пеллетный ZOTA Pellet Black в дальнейшем котел, предназначен для теплоснабжения индивидуальных жилых домов и зданий коммунально-бытового назначения. Управление работой котла и системой отопления происходит с помощью пульта управления.
Котел снабжен автоматикой для поддержания установленной температуры теплоносителя и воздуха в помещении, системой безопасности от перегрева котла и проникновения огня в бункер и системой автоматического розжига. Котел снабжен реверсивной автоматической системой защиты от заклинивания шнека при попадании в магистраль подачи топлива инородных предметов. Автоматика котла позволяет отслеживать фактический расход топлива.
Основные преимущества твердотопливного котла Pellet Black 45 кВт
01 топливо
древесные или агропеллеты
02 технологичность
управление температурой, мощностью, фиксация фактического расхода топлива за сутки и в течение всего сезона
03 эффективность
- регулировка мощности за счет изменения количества подаваемого топлива и воздуха в зону горения;
- хронотермостат;
- автоматическая модуляция мощности PID-регулирование;
- погодозависимое управление;
- бесконтактный автоподжиг (с использованием горячего воздуха);
- управление тремя насосами - центрального отопления, ГВС, рециркуляции;
- управление приводом термосмесительного клапана;
- работа в системе с гидроразделителем;
- поддержание бесконденсатного режима;
- чугунный дефлектор в топке для улучшения качества горения;
- увеличенная площадь теплообменных поверхностей;
- обновление программного обеспечения через SD-карту;
- симметричный (бункер с узлом подачи можно смонтировать с любой стороны);
- возможность работы котла в ручном режиме (котел топится дровами или топливными брикетами);
04 удобство
автоматика работает на поддержание установленной температуры теплоносителя и воздуха
05 практичность
управление тремя насосами: центрального отопления, ГВС и рециркуляции
06 безопасность
система сигнализации остановки подачи топлива, система пассивной пожарной безопасности препятствует проникновению огня в бункер (достигается применением двушнековой подачи)
Основные характеристики твердотопливного котла Pellet Black 45 кВт
|
Класс котла |
5 |
|
Рабочее давление, бар |
3,0 |
|
Тепловая мощность, Вт |
7-45 |
|
Температура теплоносителя в аппарате не более |
200 |
|
Коэффициент полезного действия, % |
90 |
|
Диаметр дымохода, мм |
180 |
|
Объем водяной рубашки в котле, л |
135 |
|
Объём зольного ящика, л |
24 |
|
Объем бункера, л |
500 |
|
Объём камеры сгорания, л |
100 |
|
Выбросы СО, не более, мг/м3 |
500 |
|
Вид используемого твердого топлива |
Пеллеты, дрова |
|
Приблизительное время работы аппарата от одной полной загрузки древесными пеллетами при минимальной / максимальной мощности, час |
40/267 |
|
Срок гарантии, мес |
12 |
|
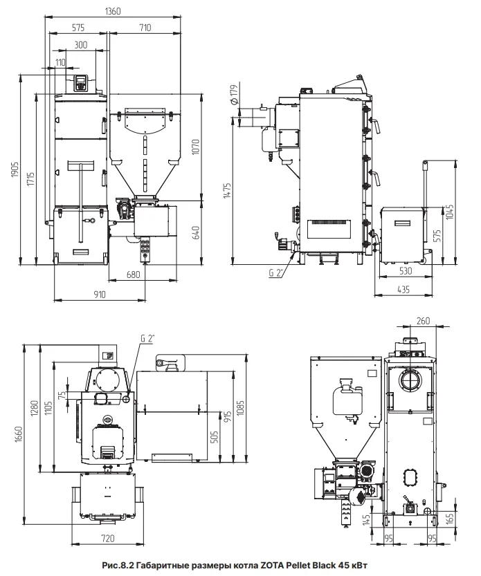
Габаритные размеры(ГхШхВ), мм |
1105х1330х1905 |
|
Габариты двери бункера, мм |
675х460 |
|
Габариты двери топки, мм |
410х620 |
|
Масса изделия, кг |
503 |
Схема устройства и установки
Рисунок 1. Устройство котла

Рисунок 2. Конструкция теплообменника

Рисунок 3. Пеллетной горелки котла

Рисунок 4. Габаритные размеры котла

Рисунок 5. Варианты установки дымовой трубы


Рисунок 6. Расположение котла в помещении котельной

Рисунок 7. Монтаж котла

Рисунок 8. Сборка бункера

Рисунок 9. Монтаж пульта управления
Комплект поставки:
| Котел |
1 шт |
|
Зольный ящик
|
1 шт |
| Перегородка для зольных ящиков |
1 шт |
|
Совок
|
1 шт |
|
Кочерга
|
1 шт |
|
Скребок теплообменника
|
1 шт |
|
Отбойник в сборе
|
1 шт |
Способы оплаты
- Оплата по выставленному счету на расчётный счет компании (ИП без НДС)
- Онлайн - оплата картой на сайте компании
- Оплата наличными при получении (только в Новосибирске)
- Оплата картой по эквайринговому терминалу при получении (только в Новосибирске)
- Оплата переводом с карты на карту
- Оплата на расчетный счет компании — ИП без НДС
- Оплата на расчетный счет компании — ИП с НДС
- Доставка по г. Новосибирск осуществляется БЕСПЛАТНО при заказе от 5000 руб.*
- Доставка в другие города
- Доставка до транспортной компании