Банная печь Анютка Мини
Банная печь Анютка Мини
Пришедшая к нам от финнов технология топки печи непосредственно из парильного помещения воплотилась нашими инженерами в серию банных печей с названием «Мини». Имея компактные размеры, банная печь «Анютка Мини» легко монтируется в небольшую парилку объемом до 10 куб.м.
Сделанная из котловой стали 09Г2С, банная печь очень быстро создает нужную температуру в Вашей парилке, а конвекционный кожух обеспечит наиболее эффективный прогрев парного помещения. Каменка печи вмещает 20 кг камней (зависит от формы и фракции камня).
Основные преимущества
банной печи Анютка
- 01 комфортность
Комфортное сочетание температуры и влажности воздуха в парилке
- 02 Компактность
Компактные размеры печи позволяют размещать ее в самых небольших парилках
- 03 надежность конструкции
обеспечивается минимальным количеством сварных швов
- 04 удобство
Центральное расположение дымоход
- 05 эффективность
В конструкции реализована эффективная система теплообмена
Характеристики банной печи Анютка
|
Габариты (Д х Ш х В) |
500 х 415 х 615 |
|
Масса камней, кг |
20 |
|
Диаметр дымохода, мм |
115 |
|
Выход дымохода |
Сверху |
|
Масса печи |
44 |
|
Объем парильного помещения, м3 |
6 - 10 |
|
Гарантийный срок, мес |
12 |
|
Топливо |
Дрова |
|
Материал |
Сталь Ст.3.09Г2С |
|
Толщина стали, мм |
6 |
|
Тип кожуха |
Конвектор |
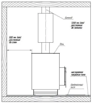
Схема устройства и установки

Рисунок 1. Устройство банной печи

Рисунок 2. подключение бака для горячей воды к банной печи


Рисунок 3. Схема установки

Рисунок 4. Высота дымовой трубы
Комплект поставки
|
Печь банная дровяная |
1 шт |
|
Колосник чугунный |
1 шт |
|
Дверка топки цельнометаллическая |
1 шт |
|
Зольный ящик |
1 шт |
|
Инструкция по монтажу и эксплуатации
|
1 шт |
Способы оплаты
- Оплата по выставленному счету на расчётный счет компании (ИП без НДС)
- Онлайн - оплата картой на сайте компании
- Оплата наличными при получении (только в Новосибирске)
- Оплата картой по эквайринговому терминалу при получении (только в Новосибирске)
- Оплата переводом с карты на карту
- Оплата на расчетный счет компании — ИП без НДС
- Оплата на расчетный счет компании — ИП с НДС
- Доставка по г. Новосибирск осуществляется БЕСПЛАТНО при заказе от 5000 руб.*
- Доставка в другие города
- Доставка до транспортной компании