Банная печь Фея
Банная печь Фея
Печь, умеющая творить чудеса, недаром была названа Фея. Посудите сами - чудесная цена, сталь 09Г2С (котловая) толщиной до 10мм! Качественные материалы и современные технологии раскроя и сварки металла, примененные при изготовлении печи «Фея», увеличивают срок службы, делают изделие приятным в эксплуатации. Печь можно устанавливать в парильное помещение до 16 куб.м.
Каменка печи «Фея» выполнена вентилируемой, благодаря чему ее невозможно залить, излишки воды будут стекать к подножию печи. Каменка вмещает до 30 кг камней, которые при нагреве излучают мягкое тепло, а если полить их водой обеспечат мелкодисперсный пар. Классический чугунный колосник обеспечивает подачу необходимого количества воздуха для устойчивого горения дров. Емкий выдвижной зольный ящик упрощает эксплуатацию печи и позволяет, не прерывая горения, удалить просыпавшуюся через колосник золу.
Основные преимущества
банной печи Фея
- 01 комфортность
Конвекционный кожух не только защищает от вредного излучения от стенок топки, но и за счет конвекции воздуха, быстро прогревает парильное помещение
- 02 топка и каменка
имеют сложную изогнутую форму, что сократило количество сварных швов и повысило прочность печи
- 03 надежность конструкции
Газоотсекатель и свод топки выполнены из стали 09Г2С толщиной 10мм
- 04 удобство
Прочистной лючок в своде печи позволяет легко очистить печь от скопившейся сажи
- 05 эффективность
Активная футеровка на задней стенке не только выполняет защитную функцию, но и производит дополнительную подачу воздуха в топку, создавая тем самым «камеру вторичного дожига газов» и повышая КПД
- 06 продуманность
Прочистной лючок в своде печи позволяет легко очистить печь от скопившейся сажи
Характеристики банной печи Фея
|
Габариты (Д х Ш х В) |
760 х 410 х 630 |
|
Масса камней, кг |
30 |
|
Диаметр дымохода, мм |
115 |
|
Выход дымохода |
Сверху |
|
Масса печи |
55 |
|
Объем парильного помещения, м3 |
12-16 |
|
Гарантийный срок, мес |
12 |
|
Топливо |
Дрова |
|
Материал |
Сталь Ст.3.09Г2С |
|
Толщина стали, мм |
до 10 |
|
Тип кожуха |
Конвектор |
Схема устройства и установки

Рисунок 1. Устройство банной печи

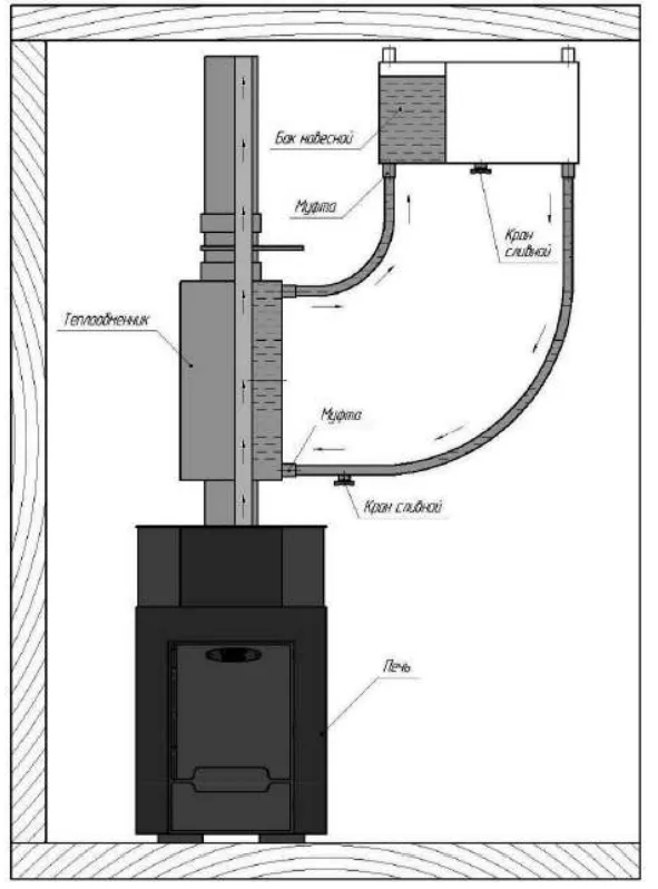
Рисунок 2. подключение бака для горячей воды к банной печи

Рисунок 3. Высота дымовой трубы

Рисунок 4. Безопасные расстояния от стен при установке банной печи
Комплект поставки
|
Печь банная дровяная |
1 шт |
|
Колосник чугунный |
1 шт |
|
Дверка топки цельнометаллическая |
1 шт |
|
Зольный ящик |
1 шт |
|
Инструкция по монтажу и эксплуатации
|
1 шт |
Способы оплаты
- Оплата по выставленному счету на расчётный счет компании (ИП без НДС)
- Онлайн - оплата картой на сайте компании
- Оплата наличными при получении (только в Новосибирске)
- Оплата картой по эквайринговому терминалу при получении (только в Новосибирске)
- Оплата переводом с карты на карту
- Оплата на расчетный счет компании — ИП без НДС
- Оплата на расчетный счет компании — ИП с НДС
- Доставка по г. Новосибирск осуществляется БЕСПЛАТНО при заказе от 5000 руб.*
- Доставка в другие города
- Доставка до транспортной компании