Банная печь Конвектика 16 Плазма антрацит
Банная печь Конвектика 16 антрацит

«Конвектика 16 Плазма» – классическая дровяная печь-каменка, рассчитана на объём парильного помещения 16 м3. Элементы топки и каменки печи, несущие наибольшую термическую и механическую нагрузку, изготовлены из коррозионо-стойкой и жаропрочной стали (содержание хрома не менее 13 %).
В конструкции печи применены аэродинамические инжекторы. Через них подается подогретый до необходимой температуры воздух для вторичного дожигания несгоревших частиц топлива. Образующиеся при этом два факела направлены на каменку, что способствует дополнительному нагреву камней и образованию «легкого пара». К тому же более «чистый выхлоп» не загрязняет дымоход и окружающую среду.
Основные преимущества банной печи Конвектика
- 01 Повышенная надёжность
Элементы топки и каменки печи, несущие наибольшую термическую и механическую нагрузку, изготавливаются из коррозионно-стойкой и жаропрочной стали (содержание хрома не менее 13%)
- 02 В конструкции печи
реализована эффективная схема теплообмена, существенно ускоряющая нагревание воздуха в парильном и смежных помещениях за счет образуемого мощного кругового конвекционного потока
- 03 Красивый дизайн
Конвектика 16 Плазма имеет одно яркое и очень значимое для многих людей отличие – выносной топливный канал с каминным экраном, выполненным из стеклокерамики, в современном широкоформатном исполнении (16:9) диагональ 45 см. Мирное соседство двух непримиримых стихий – воды и огня завораживает и впечатляет, вот почему так популярны модели банных печей с экраном.
- 04 Печь оснащена
выносным топливным каналом, что позволяет ее топить из смежного помещения
- 05 Колосниковая решетка
из массивного литейного чугуна, обеспечивает равномерное и мощное горение топлива
- 06 Печь снабжена
удобным, выдвижным зольником, который также является регулятором интенсивного горения. Он позволяет удалять накопившуюся золу, не прерывая процесс горения
Характеристики банной печи Конвектика
Габариты (Г х Ш х В) |
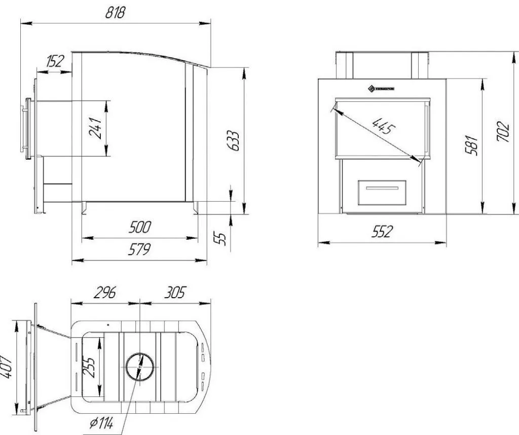
818 х 407 х 703 |
Масса камней, кг |
50 |
Диаметр дымохода, мм |
115 |
Выход дымохода |
Сверху |
Масса печи |
46 |
Объем парильного помещения |
12-16 |
Гарантийный срок, мес |
12 |
Топливо |
Дрова |
Толщина стали, мм |
2 |
Тип кожуха |
Конвектор |
Схема устройства и установки банной печи Конвектика
Рисунок 1. Устройство банной печи
Рисунок 2. Габаритные размеры
Рисунок 3. Схема установки
Рисунок 4. Схема монтажа печи (общий вид)
Рисунок 5. Схема монтажа печи (виды сбоку и сверху)
Комплект поставки
Дровяная печь–каменка «Конвектика» |
1 шт |
Топочная дверца |
1 шт |
Чугунный колосник |
1 шт |
Ящик зольника |
1 шт |
Упаковка
|
1 шт |
Инструкция по монтажу и эксплуатации
|
1 шт |
Способы оплаты
- Оплата по выставленному счету на расчётный счет компании (ИП без НДС)
- Онлайн - оплата картой на сайте компании
- Оплата наличными при получении (только в Новосибирске)
- Оплата картой по эквайринговому терминалу при получении (только в Новосибирске)
- Оплата переводом с карты на карту
- Оплата на расчетный счет компании — ИП без НДС
- Оплата на расчетный счет компании — ИП с НДС
- Доставка по г. Новосибирск осуществляется БЕСПЛАТНО при заказе от 5000 руб.*
- Доставка в другие города
- Доставка до транспортной компании