Банная печь Волжанка Вектор Скала с закрытой каменкой
Банная печь Волжанка Вектор Скала с закрытой каменкой
Печь «Волжанка Вектор Скала с закрытой каменкой» предназначена для установки в помещении бани в целях создания необходимого температурно-влажностного режима. Главной конструктивной особенностью печи является наличие емкой закрытой каменки из нержавеющей стали, вмещающей более 20 кг камней. Также, реализована эффективная схема подачи воздуха в зоны активного горения, что значительно увеличивает КПД печи. В главной конструкции применена удобная и практичная схема подачи воды в закрытую каменку, что делает процесс генерации сухого пара внутри закрытой каменки простым и максимально безопасным.
Банная печь оснащена стальной дверкой со стеклом, японского производства Nippon, благодаря которому можно наслаждаться горением дров из комнаты отдыха. В печи применяется технология «Чистое стекло» — между стеклом и топкой печи, где происходит горение дров, образуется воздушный зазор, который препятствует оседанию сажи в большом количестве на стекло. Банная печь очень быстро создает нужную температуру в Вашей парилке, а большое количество камней обеспечит длительное сохранение тепла парного помещения. Печь можно устанавливать в парильное помещение до 24 куб.м.
Основные преимущества
банной печи Волжанка Вектор
- 01 комфортность
Реализовано магнитное закрывание дверки. Новая съёмная рамка портала
- 02 топка и каменка
печи имеют сложную изогнутую форму с минимальным количеством сварных швов
- 03 надежность конструкции
Принимая во внимание неравномерность нагрева стенок и свода топки, Свод топки и Газоотсекатель выполнены из максимально толстой стали. (10мм и 8мм)
- 04 удобство
Подача воды в закрытую каменку, осуществляется через заливную горловину, с клапаном -дозатором, расположенной в противоположной части закрытой каменки относительно загрузочной горловины
- 05 эффективность
Активная футеровка на задней стенке не только выполняет защитную функцию, но и производит дополнительную подачу воздуха в топку, создавая тем самым «камеру вторичного дожига газов» и повышая КПД.
- 06 конструктивность
Каменка вмещает до 50 кг камней, которые при нагреве излучают мягкое тепло, а если полить их водой обеспечат мелкодисперсный пар.
- 07 система «Чистое стекло»
между стеклом и топкой печи, где происходит горение дров, образуется воздушный зазор, который препятствует оседанию сажи в большом количестве на стекло.
Характеристики банной печи Волжанка Вектор
|
Габариты (Д х Ш х В) |
849 х 410 х 875 |
|
Масса камней, кг |
150 |
|
Масса камней в закрытой каменке, кг |
20 |
|
Диаметр дымохода, мм |
115 |
|
Выход дымохода |
Сверху |
|
Масса печи |
79 |
|
Объем парильного помещения, м3 |
18-24 |
|
Гарантийный срок, мес |
12 |
|
Топливо |
Дрова |
|
Материал |
Сталь Ст.3.09Г2С |
|
Толщина стали, мм |
8-10 |
|
Тип кожуха |
Конвектор |
Схема устройства и установки

Рисунок 1. Устройство банной печи

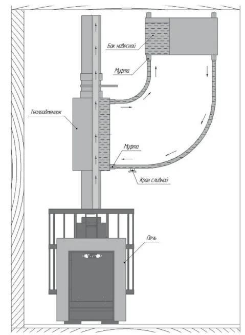
Рисунок 32. Вид спереди: подключение бака для горячей воды к банной печи
Рисунок 3. Высота дымовой трубы


Рисунок 4. Безопасные расстояния от стен при установке банной печи

Рисунок 5. Установка банной печи
Комплект поставки
|
Печь банная дровяная |
1 шт |
|
Колосник чугунный |
1 шт |
| Узел для подачи воды | 1 шт |
|
Дверка топки со стеклом |
1 шт |
|
Зольный ящик |
1 шт |
|
Инструкция по монтажу и эксплуатации
|
1 шт |
Способы оплаты
- Оплата по выставленному счету на расчётный счет компании (ИП без НДС)
- Онлайн - оплата картой на сайте компании
- Оплата наличными при получении (только в Новосибирске)
- Оплата картой по эквайринговому терминалу при получении (только в Новосибирске)
- Оплата переводом с карты на карту
- Оплата на расчетный счет компании — ИП без НДС
- Оплата на расчетный счет компании — ИП с НДС
- Доставка по г. Новосибирск осуществляется БЕСПЛАТНО при заказе от 5000 руб.*
- Доставка в другие города
- Доставка до транспортной компании