Электрический котел ZOTA Balance V2 21 кВт
Электрический отопительный котел ZOTA Balance V2-21 кВт
Котел электрический отопительный ZOTA «Balance» предназначен для обогрева жилых и производственных помещений, а также нагрева воды для технических целей. Котел должен быть подключен к автономной системе отопления и наполнен теплоносителем. Котел может работать без надзора в помещениях с температурой окружающей среды не ниже +1°С и не выше +35°С и влажностью не более 80%.
Котел необходимо использовать в системах с принудительной циркуляцией нагреваемого теплоносителя, что позволяет улучшить циркуляцию теплоносителя и повысить эффективность всей системы. Запрещается установка котла в сетях, совмещенных с центральным отоплением без применения развязывающего теплообменника
Основные преимущества Электрического котла Balance V2-21кВт
- 01 Функциональность
модельный ряд от 3 до 35 кВт; присоединительные размеры патрубков 1'' (котлы 3-15 кВт), 1 1/4" (котлы 18-36 кВт).
- 02 Безопасность
теплоизолированный корпус; порошковая покраска всех элементов; регулировка температуры нагрева воды от +30 до +900С;
- 03Надежность
блоки ТЭН из нержавеющей трубки диаметром 7,4 мм специальной конструкции с пониженной ваттной нагрузкой (возможна замена с помощью обычного ключа); возможно использование незамерзающих теплоносителей; рабочее давление 6 атмосфер; удобство сервисного обслуживания;
- 04 Экономичность
экономичная, простая, малогабаритная модель; капиллярный термостат с инерционностью не более 3 oC; возможно подключение внешнего хронотермостата; три ступени мощности для эффективного расходования электроэнергии; бесшумная работа силового блока за счет применения электромагнитных реле в коммутирующей схеме.
- 05Практичность
удобство сервисного обслуживания
- 06 безопасность
блоки ТЭН из нержавеющей трубки диаметром 7,4 мм специальной конструкции с пониженной ваттной нагрузкой (возможна замена с помощью обычного ключа); возможно использование незамерзающих теплоносителей
- 07компактность
экономичная, простая, малогабаритная модель
Основные характеристики Электрического котла Balance V2-21кВт
|
Ориентировочная отапливаемая площадь, м2 |
210 |
|
Номинальная потребляемая мощность, кВт |
21 |
|
Значение потребляемой мощности по ступеням, кВт |
3-6-9-13-17-21 |
|
Внутренний объем бака, л |
5 |
|
Номинальное напряжение питания, В |
380±10% |
|
Диапазон регулировки температуры теплоносителя, °С |
25-85 |
|
Давление теплоносителя в системе отопления, бар |
6 |
|
Габаритные размеры, мм |
747х258х170 |
|
Срок гарантии, мес |
12 |
| Размеры присоединения |
1 1/4" |
|
Масса изделия, кг |
22,5 |
Схема устройства и установки
Рисунок 1. Конструкция отопительного котла

Рисунок 2. Габаритные размеры

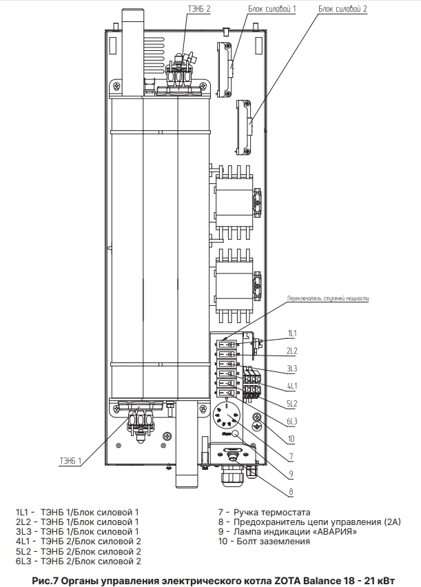
Рисунок 3. Органы управления электрокотла

Рисунок 4. Схема подключения котла

Рисунок 5. Схема установки котла


Базовая комплектация:
|
Котел |
1 шт |
|
Предохранитель 2 А / 250 V 5х20 |
1 шт |
|
Уплотнение кольцевое силиконовое G2 (артикул: DU4991100046)
|
1 шт |
|
Кронштейн настенный
|
1 шт |
|
Отвертка
|
1 шт |
|
Шуруп 6х50 с пластиковым дюбелем
|
2 шт |
|
Паспорт
|
1 шт |
Способы оплаты
- Оплата по выставленному счету на расчётный счет компании (ИП без НДС)
- Онлайн - оплата картой на сайте компании
- Оплата наличными при получении (только в Новосибирске)
- Оплата картой по эквайринговому терминалу при получении (только в Новосибирске)
- Оплата переводом с карты на карту
- Оплата на расчетный счет компании — ИП без НДС
- Оплата на расчетный счет компании — ИП с НДС
- Доставка по г. Новосибирск осуществляется БЕСПЛАТНО при заказе от 5000 руб.*
- Доставка в другие города
- Доставка до транспортной компании