Печь-камин Крит графит
Печь-камин Крит графит
Печь-камин Крит применяется для обогрева жилых помещений и приготовления пищи (модели с чугунной варочной плитой), в режиме непрерывной эксплуатации - от 6 до 24 часов (в зависимости от режима горения).
Периодичность закладки дров - с интервалом 45-90 минут. В экономичном режиме горения интервал закладки дров может быть от 3 до 5 часов. В качестве топлива применяются сухие дрова с влажностью не более 18%. Все печи разработаны для эксплуатации с закрытой дверцей. В этом случае Вы получаете максимальную тепловую эффективность и безопасность.
Основные преимущества печи-камина Крит
- 01 Комфортность
Атмосфера, которая царит в комнате с работающей печью очаровывает. Изменчивые огненные пейзажи за остекленной дверцей, театр теней на стенах, дразнящие воображение запахи и звуки - печь камин по волшебству преображает привычные домашние декорации, добавляя загадочности и уюта.
- 02 Технологичность
Благодаря топке с двойными стенками корпус печи-камина защищен от перегрева и деформации. Формат «Три стекла» открывает великолепный обзор пламени из любой части каминного зала. Благодаря фантастической прозрачности термостойкого стекла игра огня производит незабываемое впечатление.
- 03 эффективность
Система подачи воздуха извне. Камин может работать не используя воздух каминного зала. Достойная мощность 14 кВт хорошо подходит для морозных русских зим.
- 04Практичность
Система чистое стекло предотвращает осаждение сажи и заботится о чистоте стёкол. Высокий КПД благодаря системе вторичного дожига. Емкий зольный ящик – не требует частой очистки. Простота в установке и эксплуатации – только подключить к дымоходу. Готовый к установке и не требующий дорогостоящей облицовки камин «Крит» воплотил в себе самые современные технологии и последние достижения каминостроения.
- 05 дизайн
Футеровка из вермикулита отлично отражает тепло обратно в топочную камеру. Камин покрыт высококачественной черной теплостойкой краской подчеркивающей его строгие формы.
- 06 долговечность
Через несколько лет интенсивного использования вермикулит внутри топки можно заменить, не придется покупать новую печь.
Характеристики печи-камина Крит
|
Габариты (Г х Ш х В)
|
654 х 717 х 1538 |
|
Глубина топочной камеры, мм |
400 |
|
Диаметр дымохода, мм |
200 |
|
Масса печи, кг |
170 |
|
Объем отапливаемого помещения,м3 |
135-240 |
|
Площадь обогрева, м2 |
55-100 |
|
Вид топлива |
Дрова |
|
Гарантийный срок, мес |
24 |
|
Материал топки |
Сталь |
|
Футеровка |
Вермикулит |
|
Мощность, кВт |
14 |
|
Варочная плита |
Нет |
|
Система "Чистое стекло" |
Да |
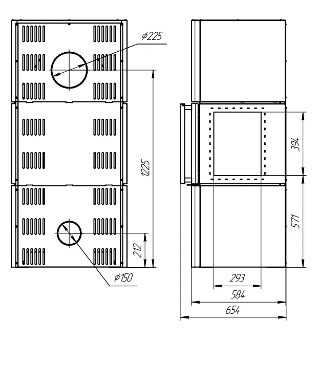
Схема устройства и установки

Рисунок 1. Габаритные размеры


Рисунок 2. Схемы расположения печи-камина возле стен из горючего материала


Рисунок 3. Схемы расположения печи-камина возле стен из негорючего материала

Рисунок 4. Схема противопожарной защиты элементов
Способы оплаты
- Оплата по выставленному счету на расчётный счет компании (ИП без НДС)
- Онлайн - оплата картой на сайте компании
- Оплата наличными при получении (только в Новосибирске)
- Оплата картой по эквайринговому терминалу при получении (только в Новосибирске)
- Оплата переводом с карты на карту
- Оплата на расчетный счет компании — ИП без НДС
- Оплата на расчетный счет компании — ИП с НДС
- Доставка по г. Новосибирск осуществляется БЕСПЛАТНО при заказе от 5000 руб.*
- Доставка в другие города
- Доставка до транспортной компании