Хомут стеновой (AISI 430/1мм) Ф350
Стеновой хомут (AISI 430/1 мм) Ф350
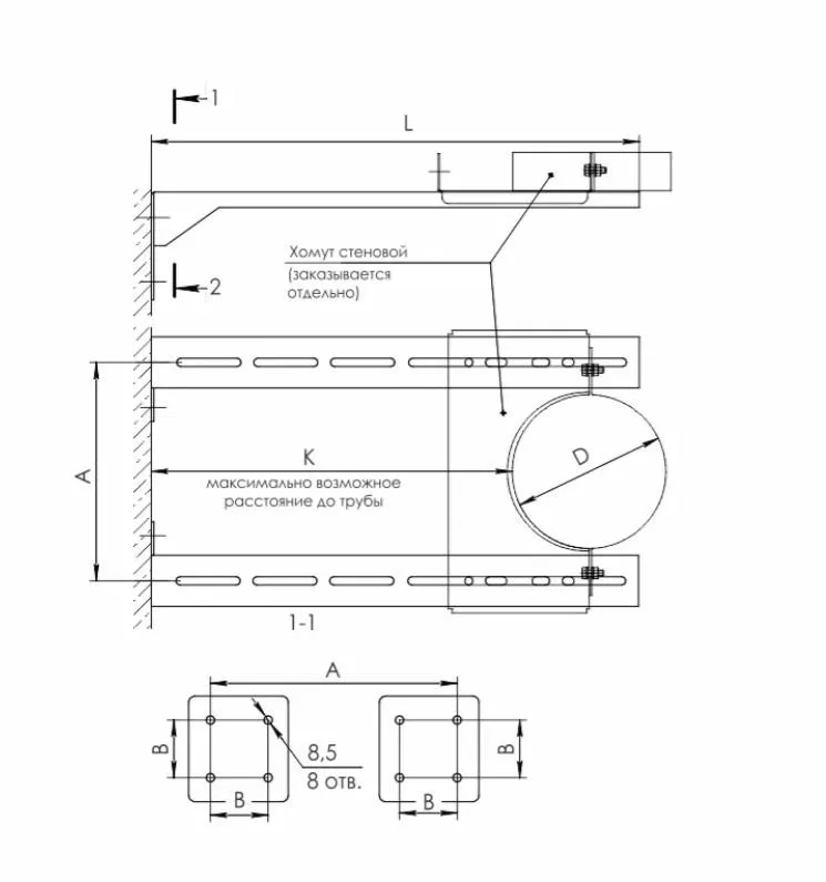
Стеновой хомут (AISI 430/1 мм) Ф350 представляет собой монтажный элемент универсальной дымоходной системы, предназначенный для надёжного крепления дымоходной трубы к вертикальной стеновой поверхности и обеспечения статической устойчивости конструкции. Изготовлен из нержавеющей стали AISI 430 толщиной 1 мм. Предназначен для применения совместно со штангами, образуя единую опорную систему для вертикальных участков дымохода диаметром 350 мм.
Хомут обеспечивает равномерное распределение механических нагрузок по окружности трубы, исключая точечные деформации и повреждение теплоизоляции сэндвич-конструкций. Регулируемый механизм затяжки позволяет надёжно фиксировать элемент на трубе различной толщины с учётом защитного кожуха. Выполнен методом холодной формовки с идеальной геометрией и усиленными крепёжными ушками для соединения со штангами.
Ключевые достоинства модели Стеновой хомут (AISI 430/1 мм) Ф350
- 01 Надёжная фиксация дымохода
Равномерное обжатие трубы по всей окружности обеспечивает устойчивость вертикального участка дымохода к ветровым и вибрационным нагрузкам, исключая раскачивание и смещение конструкции даже при высоте более 5 метров.
- 02 Совместимость со штангами
Усиленные крепёжные ушки с предварительно выполненными отверстиями позволяют быстро соединить хомут со штангами для формирования жёсткой опорной системы, распределяющей нагрузку на несущую стену здания.
- 03 Защита теплоизоляции сэндвича
Плавные внутренние поверхности и отсутствие острых кромок предотвращают повреждение внешнего контура и теплоизоляционного слоя утеплённых труб при затяжке хомута, сохраняя целостность дымоходной системы.
- 04 Регулируемый механизм затяжки
Универсальная конструкция с регулируемым диаметром позволяет надёжно фиксировать хомут на трубах диаметром 350 мм с учётом защитных кожухов и незначительных отклонений геометрии без применения дополнительных прокладок.
- 05 Коррозионная стойкость
Нержавеющая сталь AISI 430 толщиной 1 мм обеспечивает устойчивость к атмосферной коррозии, перепадам температур и воздействию влаги, гарантируя надёжность крепления на протяжении всего срока службы дымоходной системы.
- 06 Простота монтажа
Интуитивно понятная конструкция позволяет установить хомут одним монтажником без специального инструмента — достаточно затянуть болтовое соединение после позиционирования на трубе и крепления штанги к стене.
Технические характеристики
| Вес | х кг |
| Материал | Нержавеющая сталь (AISI 430) |
| Диаметр | 350 мм |

Способы оплаты
- Оплата по выставленному счету на расчётный счет компании (ИП без НДС)
- Онлайн - оплата картой на сайте компании
- Оплата наличными при получении (только в Новосибирске)
- Оплата картой по эквайринговому терминалу при получении (только в Новосибирске)
- Оплата переводом с карты на карту
- Оплата на расчетный счет компании — ИП без НДС
- Оплата на расчетный счет компании — ИП с НДС
- Доставка по г. Новосибирск осуществляется БЕСПЛАТНО при заказе от 5000 руб.*
- Доставка в другие города
- Доставка до транспортной компании