Печь для бани на газу Эльма 20 ЛГР
Печь для бани Эльма 20 ЛГР
Печь для бани Эльма 20 ЛГР — высокоэффективная газовая печь, дающая легкий пар. Конструкция топки печи разработана так, разработана так, чтобы обеспечить максимальный прогрев каменки со всех сторон, для чего применена многооборотная система газоходов.
На выходе получаем легкий, перегретый мелкодисперсный пар. Значительная часть теплоотдающей поверхности печи закрыта кожух-конвектором, существенно ускоряющим нагрев воздуха в парилке и смежных помещениях за счет образуемого им мощного кругового конвекционного потока.
Материал топки печи — жаростойкая нержавеющая сталь толщиной до 2,5 мм с содержанием хрома до 13%, которая идеально противостоит кислой среде при сжигании газа. Большое количество нагретых камней, обеспечивает стабильность температуры в парилке.
Газогорелочное устройство с выносным блоком управления и заливная воронка для подачи и равномерного распределения воды входят в комплект. Печь для бани Эльма 20 ЛГР со встроенным регистром оборудованы двумя штуцерами ¾ дюйма для подключения выносного бака посредством соединительных труб (бак и соединительные трубы приобретаются отдельно от печи).
Основные преимущества Банной печи Эльма 20 ЛГР
- 01 уникальность
Специально разработана для работы на газе - горелка и выносной блок управления в комплекте, исполнение печи с регистром
- 02 технологичность
Комфортно использовать: запуск с одной кнопки, автоматическое горение, нет золы
- 03эффективность
Легкий пар: удобная заливная воронка с каналами распределения воды, прогрев камней до 500°С
- 04 практичность
Работает на магистральном газе, при установке комплекта переналадки - на баллонном газе
- 05надёжность
Безопасность работы: европейская автоматика и датчики, элементы топки из пищевой нержавеющей стали
Основные характеристики Банной печи Эльма 20 ЛГР
|
Масса закладываемых камней во внешнюю каменку, кг |
60 |
|
Номинальное давление газа (при работе на природном газе), кПа |
1,5 |
|
Рекомендуемый режим бани |
Русская |
|
Срок гарантии, лет |
3 |
|
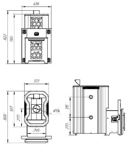
Габаритные размеры(ГхШхВ), мм |
737х375х775 |
|
Объем парильного помещения (min), куб.м. |
12 |
|
Объем парильного помещения (max), куб.м. |
20 |
|
Диаметр дымохода, мм |
115 |
|
Материал |
жаростойкая нержавеющая сталь |
|
Толщина стали, мм |
2,5 |
|
Вид топлива |
Газ |
|
Масса изделия, кг |
54 |
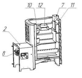
Схема устройства и установки



Рисунок 1. Устройство

Рисунок 2. Габаритные размеры

Рисунок 3. Газогорелочное устройство печи

Рисунок 4. Принцип работы газовой автоматики

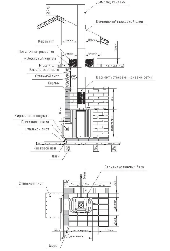
Рисунок 5. Рекомендуемая схема установки печи с кирпичной кладкой

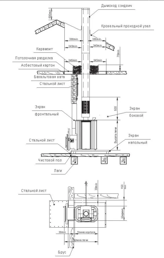
Рисунок 6. Рекомендуемая схема установки печи с защитным экраном
Комплект поставки:
|
Печь |
1 шт |
|
Дверца топливного канала |
1 шт |
|
Профиль лицевой |
1 шт |
|
Газогорелочное устройство |
1 шт |
|
Блок управления газогорелочным устройством |
1 шт |
|
Скоба крепления датчика тяги |
1 шт |
|
Комплект крепежа |
1 шт |
|
Воронка заливная |
1 шт |
|
Руководство по эксплуатации |
1 шт |
|
Упаковка |
1 шт |
Видеообзор банной печи Эльма 20 ЛГР
Способы оплаты
- Оплата по выставленному счету на расчётный счет компании (ИП без НДС)
- Онлайн - оплата картой на сайте компании
- Оплата наличными при получении (только в Новосибирске)
- Оплата картой по эквайринговому терминалу при получении (только в Новосибирске)
- Оплата переводом с карты на карту
- Оплата на расчетный счет компании — ИП без НДС
- Оплата на расчетный счет компании — ИП с НДС
- Доставка по г. Новосибирск осуществляется БЕСПЛАТНО при заказе от 5000 руб.*
- Доставка в другие города
- Доставка до транспортной компании