Стальная печь-камин Селена Т
Топка каминная Селена Т
Топка каминная Селена Т — функциональное и эстетичное решение для создания индивидуального камина. Модель обладает тепловой мощностью 9 кВт и предназначена для эффективного обогрева помещений площадью до 90 м². Корпус изготовлен из жаростойкой стали, подключение к дымоходу возможно как сверху, так и сзади. Вес устройства составляет 170 кг. Топка адаптирована для подачи воздуха извне и снабжена встроенными ручками для безопасной транспортировки и установки.
Камера сгорания рассчитана на дрова длиной до 30 см и оснащена подъёмной дверцей с тремя стеклянными панелями. Остекление с декоративным принтом по краю обеспечивает панорамный обзор пламени. Боковые стекла открываются для удобной чистки. Система «чистое стекло» предотвращает осаждение копоти. Регулировка подачи воздуха (как первичного, так и вторичного) осуществляется с помощью одного рычага. Встроенный вторичный дожиг повышает эффективность горения и снижает выбросы.
Ключевые достоинства модели Селена Т
- 01 Элегантный дизайн и компактность
Узкий корпус и вертикальная конструкция позволяют вписать топку в различные интерьерные решения без ущерба для пространства.
- 02 Подъемная дверца с тройным остеклением
Широкий обзор огня с трёх сторон создаёт эффект настоящего камина, а механизм вертикального открывания делает загрузку топлива удобной.
- 03 Встроенные ручки для переноски
Облегчают установку топки и повышают безопасность при монтаже или перемещении внутри помещения.
- 04 Система вторичного дожига
Повышает тепловую эффективность и способствует более полному сгоранию древесных газов, снижая расход топлива.
- 05 Подача воздуха извне
Обеспечивает стабильную работу в герметичных помещениях без нарушения общей вентиляции и комфорта.
- 06 Гарантия — 36 месяцев
Заводская гарантия на 3 года подтверждает высокое качество материалов и надёжность конструкции.
Характеристики Печи-камина Селена Т
|
Габариты (Г х Ш х В)
|
486 х 617 х 1722 |
|
Диаметр дымохода, мм |
150 |
|
Масса печи, кг |
170 |
|
Площадь отапливаемого помещения,м2 |
70 |
|
Вид топлива |
Дрова, древесные брикеты |
|
Гарантийный срок, мес |
36 |
|
Мощность, кВт |
7 |
|
Варочная плита |
Нет |
|
Материал печи, мм |
Сталь |
|
Материал футеровки, мм |
Вермикулит |
|
Система "чистое стекло" |
Да |
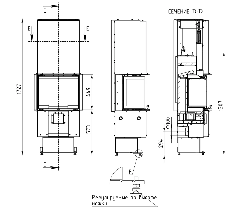
Габаритные размеры Печи-камина



Рисунок 1. Габаритные размеры
Рисунок 2. Допустимые возвышения дымоходов
Способы оплаты
- Оплата по выставленному счету на расчётный счет компании (ИП без НДС)
- Онлайн - оплата картой на сайте компании
- Оплата наличными при получении (только в Новосибирске)
- Оплата картой по эквайринговому терминалу при получении (только в Новосибирске)
- Оплата переводом с карты на карту
- Оплата на расчетный счет компании — ИП без НДС
- Оплата на расчетный счет компании — ИП с НДС
- Доставка по г. Новосибирск осуществляется БЕСПЛАТНО при заказе от 5000 руб.*
- Доставка в другие города
- Доставка до транспортной компании