Печь-камин Verona 200
Чугунная отопительная печь Verona 200
Интерьерная чугунная отопительная печь Verona предназначена для отопления помещений общим объёмом до 200 м³. В качестве топлива используются дрова длиной до 540 мм или древесные топливные брикеты.
Уникальная конструкция топки, а именно сквозное оребрение (рёбра проходят насквозь топки изнутри наружу), что значительно увеличивает теплопередачу. Чугунный пламяотбойник уникальной формы обеспечивает оборот топочных газов, а вторичная подача воздуха их дожигание, что позволяет добиться высокого КПД печи (около 70%).
Сама топка печи цельнолитая, благодаря этому конструкция максимально жёсткая и надежная. Отливается печь из серого чугуна СЧ20 (ГОСТ 1412-85) толщина топки от 10 мм. Снаружи печь окрашена термостойкой кремнийорганической краской.
Дымоход в печи монтируется в двух возможных положениях- вверх или назад, а съёмная заглушка, закрывающая свободное отверстие дымосборника служит для удобства чистки. Загружать топливо в печь Verona не составит никаких проблем, это обусловлено большими габаритами топочной двери. Для защиты просыпания горящего топлива на пол предусмотрена специальная чугунная площадка под дверью.
Основные преимущества отопительной печи Verona 200
- 01 удобство
Удобство загрузки топлива - вместительная топка, большая дверца. Возможность установки дымохода сверху или сзади.
- 02эффективность
Эффективное распределение пламени - пламяотбойник с боковыми отверстиями
- 03 безопасность
Максимально надежная конструкция - цельнолитая топка
- 04Практичность
Так же на печи Verona возможно приготовить пищу, для этого предусмотрена полноценная варочная плита со съемными чугунными кольцами.
- 05 Дизайн
печь компактна и не займёт много места в интерьере. Наслаждайтесь отличным обзором пламени, благодаря большой стекло-керамической панели немецкой компании Sсhott и системе «чистое стекло»
Основные характеристики отопительной печи Verona 200
|
Объём отапливаемого помещения, м3 |
от 120 до 200 |
|
Габаритные размеры (ВхШхГ), мм |
700х430х660 |
|
Мощность, кВт |
21 |
|
Диаметр отверстия для дымохода, мм |
115 |
|
Вид топлива |
дрова |
|
Длина дров, мм |
540 |
|
Объем топки, л |
48 |
|
Материал топки |
серый чугун (ГОСТ 1412-85) |
|
Масса, кг |
140 |
|
Гарантия, лет |
3 |
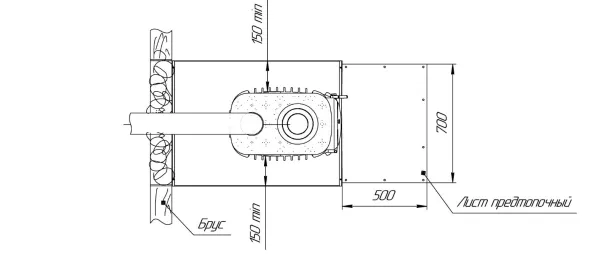
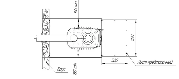
Схема устройства и установки
Рисунок 1. Устройство
Рисунок 2. Схема установки печи с кирпичной кладкой (монтаж дымосборника сверху)
Рисунок 3. Схема установки печи с защитным экраном (монтаж дымосборника сверху)

Рисунок 4. Схема установки печи с защитным экраном (монтаж дымосборника сзади)
Рисунок 5. Требования к высоте дымохода
Комплект поставки:
|
Печь |
1 шт |
|
Дверца |
1 шт |
|
Ручка дверцы |
1 шт |
|
Дымосборник |
1 шт |
|
Заглушка |
1 шт |
|
Отбойник |
1 шт |
|
Ножка |
4 шт |
|
Колосник 150х300 |
1 шт |
|
Ящик зольника |
1 шт |
|
Панель ящика зольника |
1 шт |
|
Конфорка №1 |
1 шт |
|
Конфорка №2 |
1 шт |
|
Конфорка №3 |
1 шт |
|
Ось механизма запирания |
1 шт |
|
Ручка-кнопка |
2 шт |
|
Комплект крепежа |
1 шт |
|
Руководство по эксплуатации |
1 шт |
|
Упаковка котла |
1 шт |
Видеообзор отопительной печи Verona 200
Способы оплаты
- Оплата по выставленному счету на расчётный счет компании (ИП без НДС)
- Онлайн - оплата картой на сайте компании
- Оплата наличными при получении (только в Новосибирске)
- Оплата картой по эквайринговому терминалу при получении (только в Новосибирске)
- Оплата переводом с карты на карту
- Оплата на расчетный счет компании — ИП без НДС
- Оплата на расчетный счет компании — ИП с НДС
- Доставка по г. Новосибирск осуществляется БЕСПЛАТНО при заказе от 5000 руб.*
- Доставка в другие города
- Доставка до транспортной компании
