Печь-камин Verona 200 Bronze 1.1
Печь-камин Verona 200 Bronze 1.1
Печь-камин Verona 200 Bronze 1.1 представляет собой мощную отопительно-варочную печь для эффективного обогрева помещений объёмом от 120 до 200 м³. Мощность печи составляет 21 кВт. Корпус и топка изготовлены из высокопрочного чугуна марки ЧХ-1 (с добавлением хрома) толщиной от 10 мм по технологии цельного литья, обеспечивающей максимальную жёсткость и устойчивость к термическим нагрузкам. Вес изделия — 145 кг. Диаметр дымохода — 115 мм, возможны два варианта подключения — вертикальное вверх или горизонтальное назад. В комплекте поставляется чугунный шибер-старт, исключающий полное перекрытие дымохода для безопасной эксплуатации. Гарантийный срок — 3 года.
Печь оснащена большой стекло-керамической панелью Schott (Германия) со встроенной системой «чистое стекло», обеспечивающей длительный обзор живого пламени без закопчения. Уникальная конструкция топки с сквозным оребрением (рёбра проходят насквозь изнутри наружу) значительно повышает теплопередачу и ускоряет прогрев помещения. КПД печи достигает 70% благодаря чугунному пламяотбойнику особой формы и системе вторичного дожига топочных газов. Одной закладки угля хватает на 12 часов горения, дров — до 6 часов. Допускается использование дров длиной до 54 см, древесных брикетов и угля. Печь дополнена полноценной варочной плитой со съёмными чугунными кольцами для приготовления пищи.
Ключевые достоинства модели Verona 200 Bronze 1.1
- 01 Сквозное оребрение для максимальной теплоотдачи
Рёбра жёсткости, проходящие насквозь через топку изнутри наружу, значительно увеличивают площадь теплопередачи и ускоряют прогрев помещения, обеспечивая равномерное распределение тепла по всему объёму до 200 м³.
- 02 Высокий КПД и экономичный расход топлива
Чугунный пламяотбойник особой формы направляет потоки горячих газов по оптимальной траектории, а вторичная подача воздуха обеспечивает дожигание топочных газов, повышая КПД до 70% и снижая расход топлива при горении до 12 часов на одной закладке угля.
- 03 Безопасность эксплуатации
Чугунный шибер-старт в комплекте исключает возможность полного перекрытия дымохода, предотвращая попадание угарного газа в помещение — критически важная функция для домашнего использования печи в жилых помещениях.
- 04 Универсальность топлива и загрузки
Большая топочная дверца позволяет использовать дрова длиной до 54 см, древесные брикеты и уголь без дополнительной колки. Чугунная защитная площадка под дверцей предотвращает выпадение угольков на пол при загрузке топлива.
- 05 Варочная плита и практичность
Полноценная варочная поверхность со съёмными чугунными кольцами позволяет не только отапливать помещение, но и готовить пищу, разогревать еду или использовать печь как автономный источник тепла и энергии при отключении электричества на даче.
- 06 Эстетика и удобство обслуживания
Керамическое стекло Schott (Германия) с системой «чистое стекло» обеспечивает эффектный обзор пламени на протяжении всего цикла горения. Съёмная заглушка на свободном отверстии дымосборника упрощает чистку, а два варианта подключения дымохода (вверх/назад) обеспечивают гибкость при монтаже в любом интерьере.
Основные характеристики отопительной печи Verona 200 Bronze 1.1
|
Объём отапливаемого помещения, м3 |
от 120 до 200 |
|
Габаритные размеры (ВхШхГ), мм |
700х430х660 |
|
Мощность, кВт |
21 |
|
Диаметр отверстия для дымохода, мм |
115 |
|
Вид топлива |
дрова, уголь, древесные брикеты |
|
Длина дров, мм |
540 |
|
Объем топки, л |
48 |
|
Материал топки |
чугун (ГОСТ 1412-85) |
|
Масса, кг |
145 |
|
Гарантия, лет |
3 |
Схема устройства и установки
Рисунок 1. Устройство

Рисунок 2. Габаритные размеры

Рисунок 3. Схема установки печи с кирпичной кладкой (монтаж дымосборника сверху)

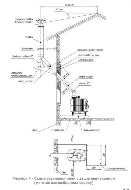
Рисунок 4. Схема установки печи с защитным экраном (монтаж дымосборника сверху)

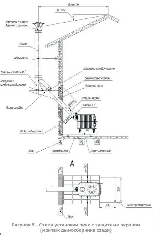
Рисунок 5. Схема установки печи с защитным экраном (монтаж дымосборника сзади)

Рисунок 6. Требования к высоте дымохода

Комплект поставки:
|
Печь |
1 шт |
|
Дверца |
1 шт |
|
Ручка дверцы |
1 шт |
|
Дымосборник |
1 шт |
|
Заглушка |
1 шт |
|
Отбойник |
1 шт |
|
Ножка |
4 шт |
|
Колосник 150х300 |
1 шт |
|
Ящик зольника |
1 шт |
|
Панель ящика зольника |
1 шт |
|
Конфорка №1 |
1 шт |
|
Конфорка №2 |
1 шт |
|
Конфорка №3 |
1 шт |
|
Ось механизма запирания |
1 шт |
|
Ручка-кнопка |
2 шт |
|
Комплект крепежа |
1 шт |
|
Руководство по эксплуатации |
1 шт |
|
Упаковка котла |
1 шт |
Видеообзор отопительной печи Verona 200
Способы оплаты
- Оплата по выставленному счету на расчётный счет компании (ИП без НДС)
- Онлайн - оплата картой на сайте компании
- Оплата наличными при получении (только в Новосибирске)
- Оплата картой по эквайринговому терминалу при получении (только в Новосибирске)
- Оплата переводом с карты на карту
- Оплата на расчетный счет компании — ИП без НДС
- Оплата на расчетный счет компании — ИП с НДС
- Доставка по г. Новосибирск осуществляется БЕСПЛАТНО при заказе от 5000 руб.*
- Доставка в другие города
- Доставка до транспортной компании
