Стальная банная печь Violet Retro Long (Камень 20 кг)
Стальная банная печь Violet Retro Long (Камень 20 кг)
Новейшие технологии позволяют отказаться от прежних традиций строительства печи и помогают возвести современные, компактные, комфортные и качественные бани. Стальная банная печь Retro Long (Камень 20 кг) – залог здоровой и качественной бани, не уступающая традиционным русским печам, по функционалу и полезности.
Стенки печи выложены кирпичом ручной формовки, создают мягкое и комфортное тепло. Закрытая каменка печи дает бесконечное количество мягкого пара. Когда появилась баня на Руси, точно не скажет никто. Но какой она будет сегодня решать только Вам.
*Камни для закрытой (внутренней) каменки входят в комплект поставки - 20 кг
Основные преимущества Банной печи Violet Retro
- 01 эффективность
Эффективная схема прогрева камней и парильного помещения заключается в том, что топка имеет множество изгибов, теплоотводящих конструктивных элементов, что увеличивает площадь теплоотдачи. Также значительную роль играет конвекция воздуха между топкой печи, радиаторами и защитным кожухом
- 02 технологичность
Все модели печей могут быть оснащены специальными усилительными приспособлениями, изготовленными из жаростойкой высоколегированной коррозионно-стойкой стали улучшающими процесс горения и дополнительно защищающими топку печи от разрушения из-за действия высокой температуры
- 03топливо
возможность применять дрова из лиственных пород древесины влажностью не более 20 %, с максимальной температурой горения не выше 800 °C, и топливные брикеты без синтетических связующих смол
- 04 практичность
Размер дров и количество камней в каменке не уступают более дорогим печам
- 05дизайн
Кирпич ручной формовки, используемый в качестве облицовочного материала печи, обеспечивает безопасность эксплуатации (исключает распространение ИК-излучения, значительно снижает риск ожогов), а также имеет большую теплоемкость по сравнению с металлическими облицовками, что позволяет дольше сохранять тепло. Каменная облицовка представляет собой панели с системой крепления, что значительно ускоряет сборку и установку печи.
- 06колосниковая решетка
На дне топки расположена колосниковая решетка. Сквозь пластины решетки зола попадает в зольный ящик, который позволяет легко произвести очистку печи, не прерывая процесс горения. Решетка является одной из наиболее теплонагруженных частей печи, изготовлена из проката повышенной прочности толщиной 5 мм.
Основные характеристики Банной печи Violet Retro
|
Объем парильного помещения, куб.м. |
8-24 |
|
Масса камней в наружной каменке, кг |
30 |
|
Масса камней во внутренней каменке, кг |
20 |
|
Срок гарантии, мес |
12 |
|
Габаритные размеры(ВхГхШ), мм |
930х835/915х610 |
|
Диаметр дымохода, мм |
115 |
|
Материал |
Нержавеющая сталь AISI 439 |
|
Толщина материала топки, мм |
5 |
|
Максимальная длина полена, мм |
420 |
|
Выносной топливный канал |
Да |
|
Вид топлива |
Дрова, брикеты |
|
Масса печи, кг |
305 |
Схема устройства и установки

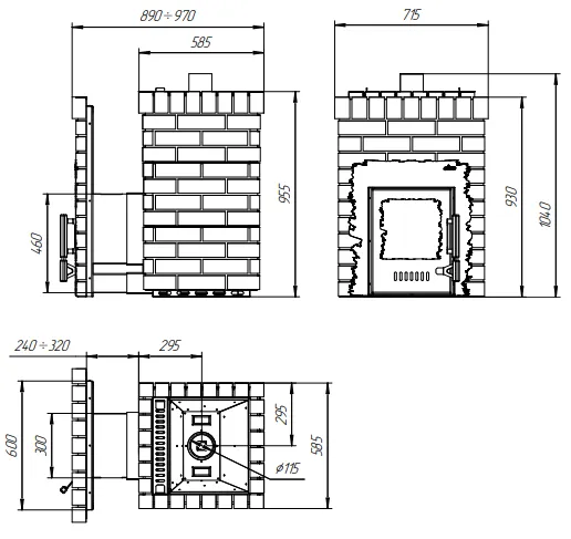
Рисунок 1. Габаритные размеры

Рисунок 2. Элементы конструкции


Рисунок 3. Внутреннее устройство и работа печи

Рисунок 4. Естественная вентиляция

Рисунок 5. Механическая вентиляция


Рисунок 6. Безопасные расстояния
Способы оплаты
- Оплата по выставленному счету на расчётный счет компании (ИП без НДС)
- Онлайн - оплата картой на сайте компании
- Оплата наличными при получении (только в Новосибирске)
- Оплата картой по эквайринговому терминалу при получении (только в Новосибирске)
- Оплата переводом с карты на карту
- Оплата на расчетный счет компании — ИП без НДС
- Оплата на расчетный счет компании — ИП с НДС
- Доставка по г. Новосибирск осуществляется БЕСПЛАТНО при заказе от 5000 руб.*
- Доставка в другие города
- Доставка до транспортной компании