Твердотопливный котел ZOTA Тополь-М 14 кВт
Твердотопливный котел ZOTA Тополь-М 14 кВт
Твердотопливный котел ZOTA Тополь-М предназначен для теплоснабжения индивидуальных жилых домов и зданий коммунально-бытового назначения, оборудованных системой водяного отопления с принудительной или естественной циркуляцией, горячего водоснабжения с помощью бака косвенного нагрева, в открытых и закрытых системах отопления с максимально допустимой температурой теплоносителя 90°C и максимально допустимым давлением 0,3 МПа.
В аппарате предусмотрена возможность установки нагревательного элемента (блока ТЭН). Аппарат должен устанавливаться в закрытом помещении, оборудованном приточно-вытяжной вентиляцией. Система вентиляции должна учитывать индивидуальные особенности помещения котельной и обеспечивать нормальную работу аппарата. До 12 часов беспрерывной работы. Два варианта загрузки топлива. Горизонтальная дверца будет удобна для верхней загрузки угля и доступа к теплообменнику во время чистки котла, а шуровочная дверца расположенная горизонтально подойдёт для загрузки дров.
Основные преимущества твердотопливного котла Тополь-М
01 наглядность
На передней панели установлен термоманометр, показывающий температуру подачи воды и давление внутри котла
02 технологичность
Корпус котла под декоративной обшивкой изолирован бальзатовым картоном. Данная особенность снижает теплопотери водяной рубашки
03 эффективность
Теплообменник состоит из трех контуров. Трубчатый теплообменник в комбинации со съемной заслонкой создают трехходовой теплообменник. Конструкция позволяет более эффективно снимать тепло с выходящих дымовых газов, тем самым увеличивает КПД
04 удобство
Водяная рубашка располагается по всему контуру котла, в том числе и под зольником. Конструкция охлаждает зольный ящик, не дает ему деформироваться, обеспечивает дополнительный теплосъем и улучшенную циркуляцию теплоносителя
05 практичность
В качестве источника тепла можно использовать газообразное или пеллетное топливо. Для этого необходимо установить соответствующую горелку
06 продуманность
В качестве вспомогательного источника тепла можно использовать электричество. Для этого в котел устанавливается нагреватели из нержавеющей стали (ТЭН)
Основные характеристики твердотопливного котла Тополь-М
|
Рабочее давление, бар |
3,0 |
|
Тепловая мощность, Вт |
4,2-14 |
|
Температура теплоносителя в аппарате не более |
90 |
|
Коэффициент полезного действия, % |
75 |
|
Диаметр дымохода, мм |
150 |
|
Объем теплоносителя в аппарате не менее, л |
46 |
|
Объем топочного пространства, л |
38 |
|
Максимальная длина полена, мм |
380 |
|
Объём зольного ящика, л |
6 |
|
Вид используемого твердого топлива |
Уголь, дрова, брикеты, газ (опция) |
|
Время работы аппарата от одной полной загрузки углём бурым не более, час |
4,4/13,4 |
|
Время работы аппарата от одной полной загрузки углём длиннопламенным не более, час |
5,8/17,5 |
|
Срок гарантии, мес |
12 |
|
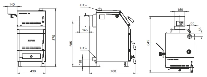
Габаритные размеры(ГхШхВ), мм |
875х440х845 |
|
Габариты загрузочной дверцы, мм |
310х200 |
|
Материал топки |
Сталь Ст.3 СП5 |
|
Масса изделия, кг |
113 |
Схема устройства и установки

Рисунок 1. Устройство

Рисунок 2. Габаритные размеры

Рисунок 3. Заполнение котла топливом для номинального режима

Рисунок 4. Заполнение котла топливом для я режима длительного горения

Рисунок 5. Варианты установки дымовой трубы

Рисунок 6. Схема закрытой системы отопления

Рисунок 7. Схема открытой системы отопления

Рисунок 8. Установка газовой горелки на отопительный котел

Рисунок 9. Схема установки котла
Комплект поставки:
|
Аппарат в сборе |
1 шт |
|
Колосниковая решетка 200х300 мм |
1 шт |
|
Колосниковая решетка 100х300 мм |
1 шт |
|
Зольный ящик |
1 шт |
|
Совок L=505 мм |
1 шт |
|
Кочерга L=533 мм |
1 шт |
|
Руководство по эксплуатации |
1 шт |
|
Упаковка |
1 шт |
|
Термометр
|
1 шт |
|
Шуровка L=546
|
1 шт |
|
*Патрубок дымохода
|
1 шт* |
|
*Тягорегулятор FR 124-3/4 А
|
1 шт* |
|
*Блок ТЭН, кВт не более 9 кВт
|
1 шт* |
|
*Панель управления ПУ ЭВТ-И1
|
1 шт* |
|
*Кабель соединительный медный (4мм2, длина 2м)
|
1 шт* |
* поставляется по отдельному заказу
Способы оплаты
- Оплата по выставленному счету на расчётный счет компании (ИП без НДС)
- Онлайн - оплата картой на сайте компании
- Оплата наличными при получении (только в Новосибирске)
- Оплата картой по эквайринговому терминалу при получении (только в Новосибирске)
- Оплата переводом с карты на карту
- Оплата на расчетный счет компании — ИП без НДС
- Оплата на расчетный счет компании — ИП с НДС
- Доставка по г. Новосибирск осуществляется БЕСПЛАТНО при заказе от 5000 руб.*
- Доставка в другие города
- Доставка до транспортной компании