Твердотопливный котел ZOTA Тополь-ВК 16 кВт
Твердотопливный котел ZOTA Тополь-ВК 16 кВт
Твердотопливный котел ZOTA Тополь-ВК предназначен для теплоснабжения индивидуальных жилых домов и зданий коммунально-бытового назначения, оборудованных системой водяного отопления с принудительной или естественной циркуляцией, горячего водоснабжения с помощью бака косвенного нагрева, в открытых и закрытых системах отопления с максимально допустимой температурой теплоносителя 90°C и максимально допустимым давлением 0,3 МПа.
В аппарате предусмотрена возможность установки нагревательного элемента (блока ТЭН). Аппарат должен устанавливаться в закрытом помещении, оборудованном приточно-вытяжной вентиляцией. Система вентиляции должна учитывать индивидуальные особенности помещения котельной и обеспечивать нормальную работу аппарата. Для увеличения длительности горения рекомендуется применение комплекта TurboSet. В этом случае процесс горения контролирует автоматика. Главное отличие от серии «Тополь М» - водонаполненные колосники и измененная конфигурация теплообменника
Основные преимущества твердотопливного котла Тополь-ВК
- 01 наглядность
термометр на верхней панели котла (для измерения температуры подачи воды)
- 02 технологичность
работа в системах с давлением до 3 атмосфер
- 03эффективность
корпус котла теплоизолированный и газоплотный; водяная рубашка покрыта базальтовым картоном, снижающим теплопотери
- 04 удобство
загрузка топлива в вертикальной и горизонтальной плоскостях (обеспечивают топочные дверцы, закрывающиеся на замок)
- 05Практичность
регулируемая поддувальная заслонка дверцы зольника (регулировка осуществляется с помощью винта в ручном режиме или управляется механическим регулятором тяги - опция)
- 06 продуманность
наиболее высокий КПД среди бюджетных моделей твердотопливных и комбинированных котлов
-
Основные характеристики твердотопливного котла Тополь-ВК
|
Рабочее давление, бар |
3,0 |
|
Тепловая мощность, Вт |
5-16 |
|
Температура теплоносителя в аппарате не более |
90 |
|
Коэффициент полезного действия, % |
75 |
|
Диаметр дымохода, мм |
150 |
|
Объем теплоносителя в аппарате не менее, л |
29 |
|
Объем топочного пространства, л |
39 |
|
Максимальная длина полена, мм |
396 |
|
Объём зольного ящика, л |
7 |
|
Вид используемого твердого топлива |
Уголь, дрова, брикеты |
|
Время работы аппарата от одной полной загрузки углём бурым не более, час |
4,4/13,4 |
|
Время работы аппарата от одной полной загрузки углём длиннопламенным не более, час |
5,8/17,5 |
|
Срок гарантии, мес |
12 |
|
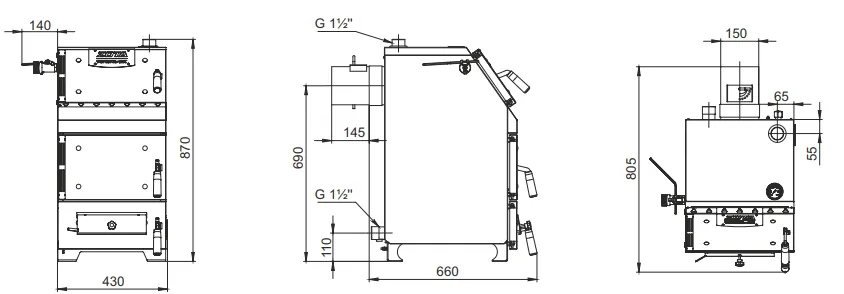
Габаритные размеры(ГхШхВ), мм |
805х440х870 |
|
Габариты загрузочной дверцы, мм |
310х195 |
|
Материал топки |
Сталь Ст.3 СП5 |
|
Масса изделия, кг |
108 |
Схема устройства и установки

Рисунок 1. Устройство

Рисунок 2. Габаритные размеры

Рисунок 3. Заполнение котла топливом для номинального режима

Рисунок 4. Заполнение котла топливом для я режима длительного горения

Рисунок 5. Варианты установки дымовой трубы

Рисунок 6. Схема закрытой системы отопления

Рисунок 7. Схема открытой системы отопления

Рисунок 8. Схема установки котла
Комплект поставки:
|
Котёл в сборе |
1 шт |
|
Зольный ящик |
1 шт |
|
Кочерга L=533 мм |
1 шт |
|
Шуровка L=546 |
1 шт |
|
Совок L=505 мм |
1 шт |
|
Руководство по эксплуатации |
1 шт |
|
Упаковка |
1 шт |
|
Термометр
|
1 шт |
|
*Патрубок дымохода
|
1 шт* |
|
*Тягорегулятор FR 124-3/4 А
|
1 шт* |
|
*Блок ТЭН, кВт не более 9 кВт
|
1 шт* |
|
*Панель управления ПУ ЭВТ-И1
|
1 шт* |
|
*Кабель соединительный медный (4мм2, длина 2м)
|
1 шт* |
|
*Комплект автоматики TurboSet
|
1 шт* |
* поставляется по отдельному заказу
Способы оплаты
- Оплата по выставленному счету на расчётный счет компании (ИП без НДС)
- Онлайн - оплата картой на сайте компании
- Оплата наличными при получении (только в Новосибирске)
- Оплата картой по эквайринговому терминалу при получении (только в Новосибирске)
- Оплата переводом с карты на карту
- Оплата на расчетный счет компании — ИП без НДС
- Оплата на расчетный счет компании — ИП с НДС
- Доставка по г. Новосибирск осуществляется БЕСПЛАТНО при заказе от 5000 руб.*
- Доставка в другие города
- Доставка до транспортной компании