Зонт-К с ветрозащитой (430/0,5 мм) Ф250
Зонт-К с ветрозащитой (430/0,5 мм) Ф250
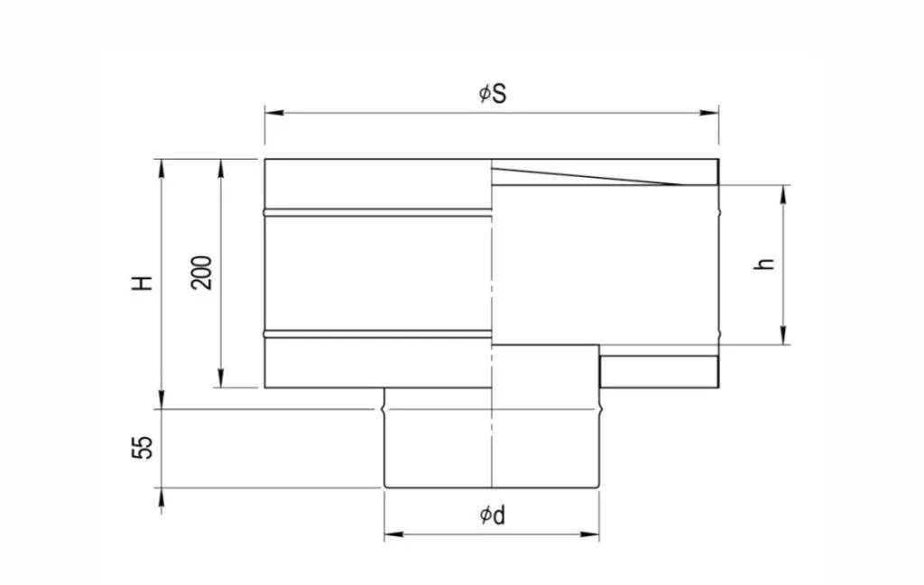
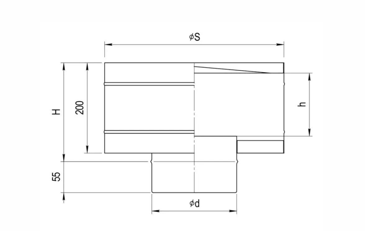
Зонт-К с ветрозащитой (430/0,5 мм) Ф250 представляет собой завершающий монтажный элемент дымоходной системы универсального применения, предназначенный для комплексной защиты устья дымового канала от атмосферных осадков и негативного воздействия ветровых нагрузок. Изготовлен из нержавеющей стали AISI 430 толщиной 0,5 мм. Конструкция включает защитный козырёк и специальный ветрозащитный экран, предотвращающий проникновение дождя, снега, мусора и опрокидывание тяги при сильных порывах ветра.
Зонт-К с ветрозащитой устанавливается на верхний срез одностенной трубы диаметром 250 мм и надёжно фиксируется посредством раструбного соединения. Специальный ветрозащитный экран создаёт зону стабильного давления над устьем дымохода, исключая образование разрежения при боковом ветре и гарантируя сохранение тяги даже в экстремальных погодных условиях. Элемент выполнен методом холодной формовки с идеальной геометрией и обеспечивает длительную защиту дымоходной системы от коррозии и повреждений.
Ключевые достоинства модели Зонт-К с ветрозащитой (430/0,5 мм) Ф250
- 01 Комплексная защита от осадков и ветра
Двойная защитная система — козырёк предотвращает проникновение дождя и снега, а ветрозащитный экран исключает опрокидывание тяги при сильных порывах ветра, обеспечивая стабильную работу дымохода в любых погодных условиях.
- 02 Стабилизация тяги при шквальном ветре
Специальный экран создаёт зону нормального давления над устьем дымохода даже при боковом ветре скоростью до 25 м/с, полностью исключая риск задувания пламени и выброса продуктов сгорания в помещение.
- 03 Универсальная совместимость
Стандартный диаметр 250 мм обеспечивает совместимость с одностенными дымоходными трубами для твердотопливных котлов, печей, каминов и других теплогенераторов без необходимости дополнительных переходников.
- 04 Коррозионная стойкость
Нержавеющая сталь AISI 430 с содержанием хрома 16-18% обеспечивает устойчивость к атмосферной коррозии, перепадам температур и воздействию агрессивных сред, гарантируя срок службы не менее 10 лет даже в условиях повышенной влажности.
- 05 Простота монтажа
Раструбное соединение позволяет быстро и надёжно установить зонт на верхний срез дымохода без применения сварки или специального инструмента, обеспечивая герметичную фиксацию и устойчивость к ветровым нагрузкам.
- 06 Повышенная безопасность эксплуатации
Ветрозащитная конструкция критически важна для безопасной работы отопительного оборудования в регионах с сильными и порывистыми ветрами, исключая риск отравления угарным газом при опрокидывании тяги и обеспечивая бесперебойный отвод продуктов сгорания.
Технические характеристики
| Вес | х кг |
| Материал | Нержавеющая сталь (AISI 430) |
| Толщина | 0,5 мм |
| Рекомендуемая температура дымохода | до 450°С |

Способы оплаты
- Оплата по выставленному счету на расчётный счет компании (ИП без НДС)
- Онлайн - оплата картой на сайте компании
- Оплата наличными при получении (только в Новосибирске)
- Оплата картой по эквайринговому терминалу при получении (только в Новосибирске)
- Оплата переводом с карты на карту
- Оплата на расчетный счет компании — ИП без НДС
- Оплата на расчетный счет компании — ИП с НДС
- Доставка по г. Новосибирск осуществляется БЕСПЛАТНО при заказе от 5000 руб.*
- Доставка в другие города
- Доставка до транспортной компании